VALCASA s.r.l. - Via Col. Alessi 16 - 23100 SONDRIO - tel 0342 515392 - P.I./C.F. 11112430159 - email info@valcasa.it





Aggiungi valcasa.it ai tuoi preferiti
Aggiungi valcasa.it
ai tuoi preferiti


Sito validato!
 
CSS validato!
 
Sito creato da
LarianaWeb, creazione siti web


SONDRIO...AMPIO PIANO TERRA AD USO UFFICIO


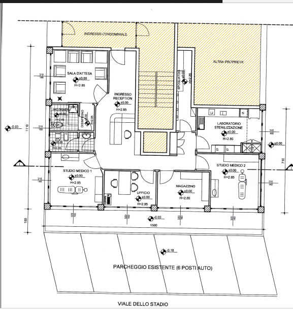
SONDRIO...AMPIO PIANO TERRA AD USO UFFICIO. Al piano terra di un piccolo condominio in via dello Stadio, ben tenuto, in ottime condizione, affacciato direttamente sul viale, con serramenti nuovi elettrificati e impianto elettrico nuovo, ampia metratura ad uso ufficio (ex studio odontoiatrico con autorizzazione sanitaria regionale) cosi composto: ingresso reception, sala attesa, doppio studio medico, ufficio, magazzino, spogliatoio, locale sterilizzazione e doppi servizi dei quali 1 per handicap. Ampie vetrate sui tre lati. Parcheggio condominiale. Eventualmente affittabile a 1.600 euro mensili. Riscaldamento autonomo a metano. Classe energetica G PER INFO TEL. 3483006606 SITO WEB: WWW.VALCASA.IT

Codice immobile: 3147
Categoria: Locale commerciale
Sottocategoria: Ufficio
Proposta: Vendita
Provincia SO
Comune SONDRIO
Dove Valtellina-Sondrio
Prezzo € 200000
 
Disposizione
 
Bagni 1
Piano terra
 
Posizione
 
Panoramico  
 
Superficie
 
Sup. totale commerciale 130
 
Stima
 
Stato Libero
Condizioni Buono
 
Impianti
 
Impianto elettrico a norma
Riscaldamento Autonomo
Doppi vetri  
 
Dettagli
 
Numero vani 6